Museo Lázaro Galdiano

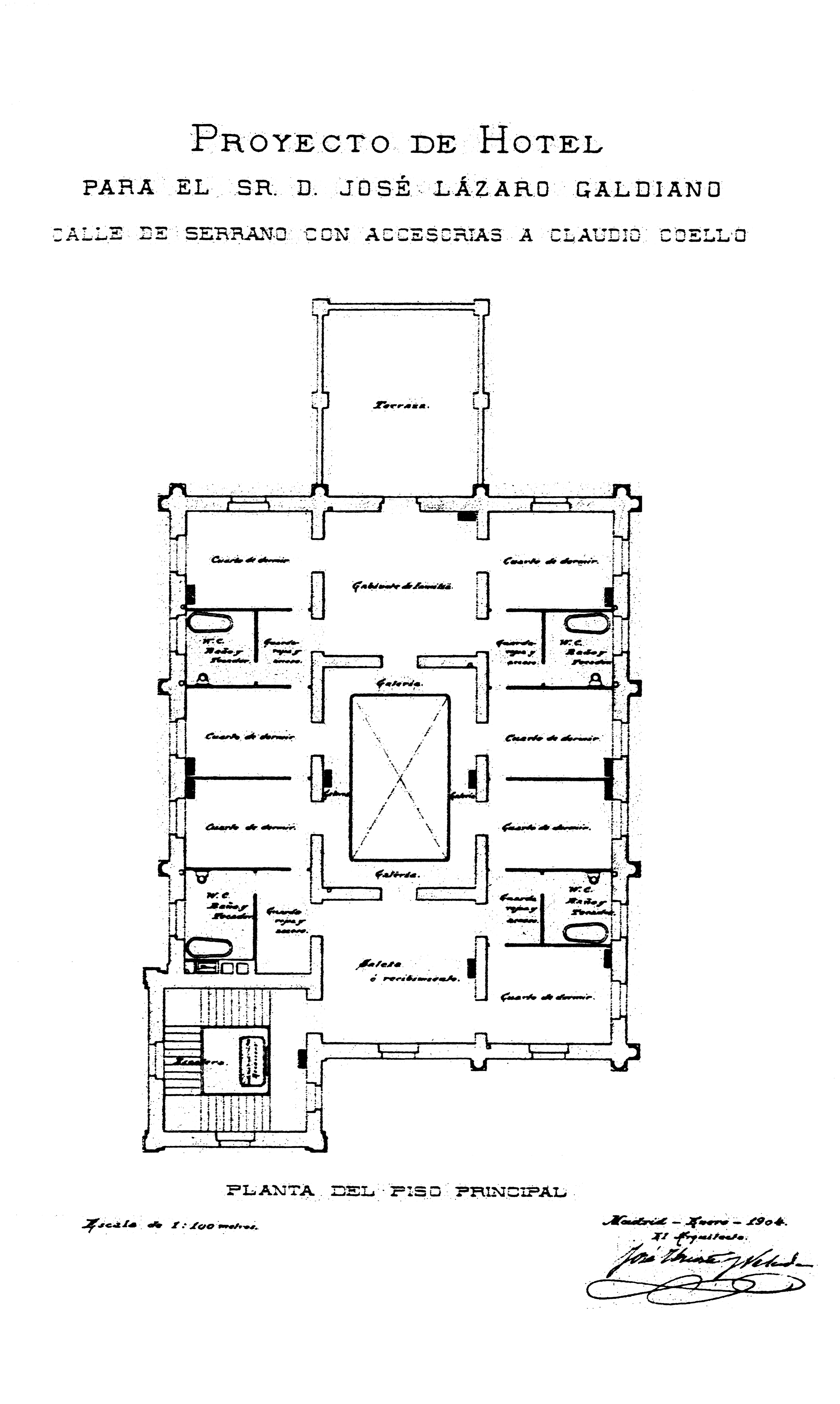
Promovido por José Lázaro Galdiano y su esposa, Paula Florido Toledo, para establecer su residencia particular en Madrid, tras su matrimonio en 1903, se encargó el proyecto a José Urioste en 1904, pero por las difíciles relaciones con su cliente, acabo dimitiendo, siendo Joaquín Kramer Arnaiz su sucesor. Éste, mantuvo en el nuevo proyecto, la concepción global inicial y asumió las continuas modificaciones del propietario, difícil de complacer. Nueve meses después se iniciaron las obras con la colaboración de su sobrino José de Lorite. Cansado de las exigencias del promotor, Kramer abandonó en 1906, sustituyéndole a partir de entonces Borrás Soler, quien ya había trabajado para aquel, realizando el edificio colindante donde se ubicaba la sede de su editorial La España Moderna. El edificio es de planta rectangular, alrededor de un patio cubierto, al que se adosa un pórtico, semiabierto originalmente, y en el extremo opuesto una torre, donde Urioste había previsto alojar la escalera, pero Lázaro decidió desplazarla para colocar en ella tres hermosas salas. Al exterior, presenta un vocabulario más clásico e intemporal. El edificio, y su colección artística, fue donado al Estado por Lázaro Galdiano con objeto de fundar un museo, siendo inaugurado en 1951, aunque su nuevo uso pronto exigió una adecuación del interior y ampliación para biblioteca y oficinas, encargándose las obras al arquitecto Fernando Chueca, quien situó esta última en un pabellón autónomo, adosado a las tapias de López de Hoyos, cuya arquitectura, sencilla y moderna, resulta respetuosa con la de aquel.
Periodo
1904 - 1908
Otras denominaciones
Antiguo palacio "Parque Florido" y sede editorial La España Moderna
Datos de localización y contacto
- Dirección
- CALLE SERRANO, 122 28006 MADRID
- Madrid
- España
- Barrio / Distrito
- CASTELLANA / SALAMANCA
- Web
- www.flg.es
Uso y funciones
Función | Museo |
---|---|
Actividades ajenas | Conciertos, conferencias, biblioteca y Edición de la Revista Goya. |
Uso específico | Museo, fundación y sede de la Revista Goya. |
Tipo acceso | Restringido a su función |
Observaciones | Visitas guiadas para grupos previa petición de cita. |
- SAGUAR QUER, Carlos: "José Lázaro Galdiano y la construcción de Parque Florido.", en Goya, nº 261, 1997, pp. 515-535
- CHUECA GOITIA, Fernando: "La Fundación Lázaro Galdiano.", en Revista Nacional de Arquitectura, nº 202, oct. 1958, pp. 15-20
Palacio : José Urioste Velada : 1904 (1º P) : Joaquín Kramer Arnaiz : 1904 (2º P) 1904-1906 (O) : José de Lorite Kramer : 1904-1906 (O) : Francisco Borrás Soler : 1906-1908 (O).
Edificio La España Moderna : Francisco Borrás Soler : 1905 (P).
1ª Reforma y ampliación pabellón : Fernando Chueca Goitia : 1951 (P) 1951-1954 (O).
2ª Reforma y ampliación : Alberto Ballarín Iribarren , Rafael Fernández del Amo y López-Gil : 1998 (P) 2000 (Co).
Reestructuración y restauración : Fernando Borrego Díaz : 2000 (P) 2001 (Co).
PGOUM
Catalogación y Normativa | |
---|---|
Catalogación | Nivel 1. Singular |
Norma zonal.Grado.Nivel | 1.5 |
Otros datos
Protección Patrimonio Histórico | BIC Declarado |
---|---|
Propiedad/Tenencia | Estado |
Observaciones | Ministerio de Cultura |